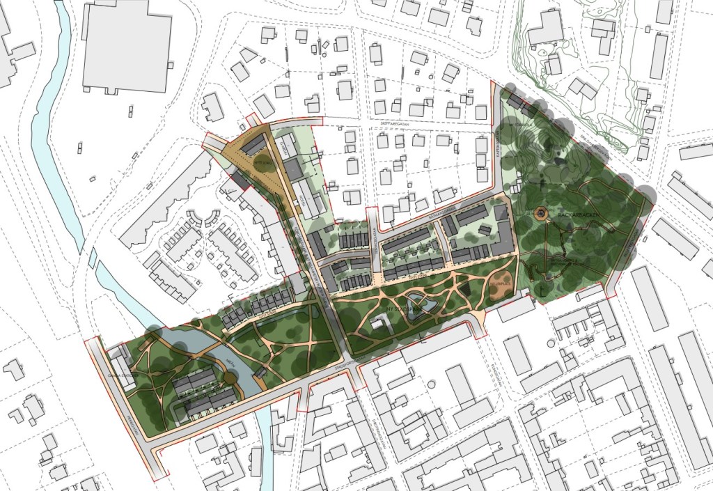
In the attempt to identify core issues in the central parts of Karlshamn, regarding the built environment, the lack of urban green spaces emerged. The project, Norreport – The green city gate of Karlshamn, suggests a new city park in the historical city gate- Norreport – located north of where the city grid pattern is discontinued. Hence, the reintroduction of the city gate of Karlshamn. Further, the suggested plan also contains new residents, commercial activities and recreational qualities to name a few.
A 3D modell works as a complementary tool in regards to illustrating the proposed plan. The reality of the proposed plan is much more easy to understand and grasp when brought to life in a 3D modell, whether the spectator is a professional planner or external stakeholder (e.g. citizen). In comparison to virtual 3D visualizations a physical model cannot selectively choose certain views or qualities of the plan to highlight – the spectator is free to interact and explore the model how he or she wants. A 3D modell does not lie!
With the use of a laser cutter the contour lines of the site were created. By importing the terrain from an AutoCAD file to the laser cutter the reality of the site was accurately presented in 3D. The model reflects the landscape as well as the natural conditions of the site. Most prominent in the model is Rackarbacken in the most eastern part of the site. Here the model has great advantage over a regular 2D plan as the characteristics of the dramatic changes in elevation is clearly emphasized. In model, Rackarbacken is also well presented as a part of the framing of the new park alongside with the new as well as the existing buildings.
Karlshamn is geographically located where stormwater management becomes a central question in the development of the city. Mieån, a smaller river, runs through the site which is crucial to stormwater management on the site. The model illustrates how rainwater is collected by the river as the new park slopes towards it.
By William Storm & Amanda Edin



Collaboration with
